Für Onlinebestellungen gilt, dass sich die Lieferzeit über die Festtage und zum Jahreswechsel um ca. 1-2 Wochen verschieben kann.
Für Onlinebestellungen gilt, dass sich die Lieferzeit über die Festtage und zum Jahreswechsel um ca. 1-2 Wochen verschieben kann.

Geräteschuppen Holz Baltic 18-22

Zoom Gartenhaus - Gerätehaus -Geräteschuppen Holz 186 x 230 cm
Geräteschuppen aus Holz 186 x 230 cm

Für diese ausgewählte Variante würden Sie 3 Pakete a 3,0 m² Bitumen-Dachschindeln benötigen.

186 x 230 cm

Auswahl zurücksetzen

186 x 230 cm
Art. Nr.: 88120650
Lieferzeit: 4 - 6 Wochen
Zubehör

Beschreibung

Geräteschuppen Holz

Ein Geräteschuppen aus Holz ist ein praktischer Aufbewahrungsraum. Größer als ein Gartenschrank finden in einem Holzschuppen jede Menge Gartenwerkzeuge und auch Fahrräder Platz. Um solch ein Vorhaben schnell umzusetzen eignen sich unsere Geräteschuppen aus Holz bestens. Vorgefertigte Wandelemente in einer stabilen Ausführung machen den Aufbau einfach und schnell. Unsere Geräteschuppen vom Typ Baltic sind naturbelassen. Die Fundamentgrößen betragen 186x230 cm oder 230x223 cm. Ein solides Dach aus 20 mm Nut- und Feder Schalung sowie ein Fußboden und imprägnierte Lagerhölzer gehören zum Komplettbausatz. Die in der Tür integrierten Salino-Fenster aus Plexiglas schaffen Einblick und optimieren pfiffig die Stellfläche. 

Fertige Wandelemente, Zubehör und Anleitung im Komplett-Lieferpaket machen den Aufbau ihres Gerätehauses simpel.

    Produktinfo 

    Wände: Montagefertige Wandelemente in Rahmenkonstruktion. Besonders stabile Ausführung – Kanteln ca. 35 × 35 mm, beplankt mit ca. 20 mm starken, naturbelassenen Profilen aus Kiefer / Fichte.

    • Elementraster:ca. 730 × 1.780 mm
    • Fenster: Kunstglas ca. 35 × 35 cm (Salino- Form), in der Tür bereits fertig eingebaut
    • Tür:„X“-Flügelrahmen (Kaspeltür) mit Kastenschloss
    • Dach:ca. 20 mm Schalung mit Nut + Feder und Bitumen-Dachbelag als Ersteindeckung.
    • Fußboden: ca. 20 mm Schalung mit Nut + Feder auf kesseldruckimprägnierten Lagerhölzern

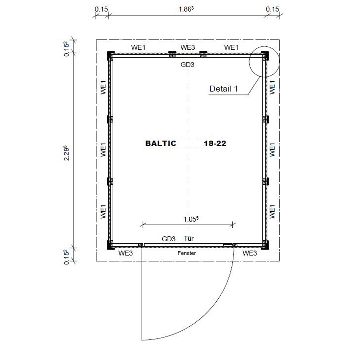
    Geräteschuppen BALTIC 18/22

    • Seitenwandhöhe: 1.780 mm
    • Firsthöhe: 2.320 mm
    • umbauter Raum: 8,89 m³
    • Türbreite: 1050 mm

    Geräteschuppen BALTIC 22/24

    • Seitenwandhöhe: 1.780 mm
    • Firsthöhe: 2.300 mm
    • umbauter Raum: 10,60 m³
    • Türbreite: 1.410 mm

    Solide, komplett und hochwertig

    • fixes Fenster (ohne Öffnungsfunktion) aus bruchsicherem Kunstglas, Elemente zumTeil auch variabel anzuordnen
    • Massivholztür mit stabilen Türbändern und Kastenschlos
    • Massivholzdach aus unbehandelten ca. 20mm starken Nut- und Federbrettern  (gilt auch für grundierte Modelle). Dachunterschlag bei farbigen Häusern immer naturbelassen (beidseitig)
    • Wände als passgenaue Elemente aus Massivholz (Softline-Nut +Feder-Profile, ca. 20 mm)
    • Bitumen-Dachbelag als Ersteindeckung; eine zweite Lage Dachpappe oder Bitumen Schindeln sind zusätzlich erforderlich. Bitumen-Schindeln (Paketanzahl siehe Grundrisszeichnung) als Zubehör in diversen 
    • Farben /Formen erhältlich
    • Fußboden (ca. 20mm stark!) aus unbehandelten Holzdielen mit Nut und Feder Unterkonstruktion: Beständige und stabile Bodenbalken (40 x 60mm, kesseldruckimprägniert)
    • Winderprobte Konstruktion: extra solide mit massiven Rahmenhölzern (Kanteln 35 x 35mm) 
    • Elemente sind vorgefertigt – dadurch ein extremleichter und schneller Aufbau möglich
    • variables Schleppdach, rechts oder links anzubringen (Ausstattungsvariante) 
    • Hinweis: Bei den Elementhäusern sind Sonderanfertigungen nicht möglich. Die Häuser werden ohne Dachrinnen-Entwässerungsmaterial geliefert diese werden von Joda® empfohlen. Farbnuancen, raue Oberflächen und Holzinhaltsstoffe sind zu akzeptieren, diese stellen kein Reklamationsgrund dar.
     

    • Anstrich und Pflege – so schützen Sie ihr Gartenhaus Ihr Blockbohlenhaus ist aus bestem Holz gefertigt und sollte deshalb auch entsprechend gegen Fäulnis und Pilzbefall geschützt werden, damit Sie lange Freude an Ihrem Haus haben. Damit Sie Ihr Haus mit einem Anstrich Ihrer Wahl versehen können, werden alle Holzteile unbehandelt ausgeliefert. Der Außenanstrich sollte gleich nach der Montage mit einer pigmentierten offenporigen Holzschutzlasur erfolgen. Die offenporigen Holzschutzlasuren lassen Schlagregen abperlen, gewährleisten aber trotzdem einen Wasserdampfaustritt beim Trocknen des Holzes. Achten Sie bei der Wahl der Holzschutzlasur darauf, dass diese Wirkstoffe gegen Fäulnis, Pilze und holzzerstörende Insekten besitzt. Sollte das nicht der Fall sein, ist vorher eine wirkstoffhaltige Grundierung aufzutragen. 
    • Bei Holzschutzlasuren können Sie unter verschiedenen Farbtönen wählen. Verwenden Sie auf keinen Fall farblose Lasuren für außen. Diese bieten einen zu geringen Schutz gegen Verwitterung durch UV-Einwirkung (Zersetzung des Lignins im Holz). Wir empfehlen den Erstanstrich mit einer hellen Kiefern- oder Pinienlasur vorzunehmen, da das Holz von allein nachdunkelt. Optisch sehr gut wirkt ein farblich dunkleres Absetzen bestimmter Bauteile, wie z.B. Tür-, Fenster- und Dachblenden, zum ansonsten heller gehaltenem Haus. Der Außenanstrich sollte nach ca. 8 bis 10 Wochen wiederholt werden, wenn sich das Haus etwas gesetzt hat. Tragen Sie besonders im Hirnholzbereich die Lasur sättigend auf, da das Holz quer zur Faser ein besonders hohes Wasseraufnahmevermögen besitzt. 
    • Je nach Witterungsbeeinflussung, im Regelfall aller 2 Jahre, sollte das Haus von außen nachbehandelt werden. Vergessen Sie nicht, Fensterkreuze und Deckleisten auch von hinten zu streichen. Streichen Sie immer im Maserungsverlauf und immer lang durchgehend, ohne Absätze, ansonsten entstehen dunklere Ansatzflecken, die sehr unschön aussehen. Das Gleiche gilt für evtl. Schleifarbeiten - immer in Maserungsrichtung schleifen - und kein grobkörniges Schleifpapier verwenden. 
    • Innenwände und Decken können mit Flüssigwachs oder mit für Innenräume zugelassenen Holzschutzlasuren behandelt werden. Wichtig: Fenster und Türen sind von innen, außen und im Falzbereich gründlich zu behandeln. Diese Bauteile bestrafen eine Nachlässigkeit sofort mit unschönen Flecken durch Regen- und Kondenswasser, welches von den Scheiben läuft. Außerdem neigen diese Bauelemente dann weniger zum Verziehen (Bimetalleffekt).
    Geeignete Anstriche finden Sie unter Joda®color Holzschutzfarbe.
    In manchen Fällen benötigen Sie eine Baugenehmigung für Ihren Gartenschuppen. Dies hängt unter anderem von den Bestimmungen Ihres Bundeslandes und der Größe des Gerätehauses ab. Die Bauvorschriften einiger Bundesländer sehen für Bauten bis zu einer bestimmten Größe innerhalb einer bebauten Fläche keine Baugenehmigungspflicht vor. Planen Sie Ihr Projekt daher gründlich und überlegen Sie sich: Wie viel Platz benötigen Sie für Fundament und Holzhaus? Anschließend können Sie die Angaben mit den Bauvorschriften Ihres jeweiligen Bundeslandes abgleichen. Ist dieser Punkt geklärt, können Sie bequem zur Auswahl des richtigen Modells übergehen und auf Wunsch den All-Round-Service Ihres Joda® Fachhändlers in Anspruch nehmen, der Sie gerne bis hin zur Montage begleitet.
     
    Infomationen über das Baurecht erfahren Sie bei den einzelnen Bundesländern:

    Eigenschaften
    Kategorie
    Gartenhäuser
    Tiefe
    230
    Farbe
    natur
    Dachüberstand seitlich
    16 cm
    Wandstärke
    19 mm
    Dachform
    Satteldach
    Vordach
    15 cm
    Breite
    186
    Material
    Holz
    Türen
    Einzeltür
    umbauter Raum
    8,89 m³
    Holzart
    Fichte
    Firsthöhe
    232 cm
    Behandlung
    naturbelassen
    Wandhoehe
    178 cm
    Dachüberstand hinten
    15 cm
    Türart
    X-Flügelrahmen (Kaspeltür) mit Kastenschloss
    Dachstärke
    20 mm
    Technik
    - aus naturbelassenem Fichtenholz
    - montagefertige Wandelemente in Rahmenkonstruktion
    - erhältlich in den Ausführungen: 18-22 (Sockelmaß: 186x230cm) und 22-24 (Sockelmaß: 230x223cm)
    - besonders stabile Ausführung, Kanteln ca. 35 x 35 mm
    - beplankt mit ca. 20 mm starken, naturbelassenen Profilen aus Kiefer/Fichte
    - Elementraster: ca. 730x1.780 mm
    - Fenster: Kunstglas ca. 35x35 cm (Salino Form), in der Tür bereits fertig eingebaut
    - Tür: X-Flügelrahmen (Kaspeltür) mit Kastenschloss
    - Dach: ca. 20 mm Schalung mit Nut und Feder und Bitumen-Dachbelag als Ersteindeckung
    - Fußboden: ca. 20 mm Schalung mit Nut und Feder auf kesseldruckimprägnierten Lagerhölzern
    Produktbewertungen
    Geräteschuppen Holz Baltic 18-22
    Was unsere Kunden über dieses Produkt sagen:
    D.S.
    2020-06-04 02:32:51
    Qualität des Holzes nicht TOP. Nach Rücksprache mit dem Kundenservice wurde schnell Ersatz geliefert.